
38 PHOTOS
Montréal (Verdun/Île-des-Soeurs) - Centris® No. 20795875
3995 Rue Bannantyne, #111
-
1 + 1
chambres -
1 + 1
salles de bains -
1016
PC -
699 900.0 $
prix
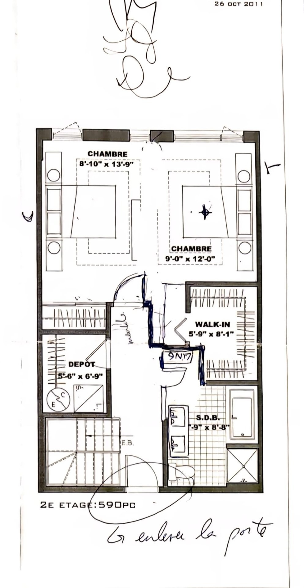
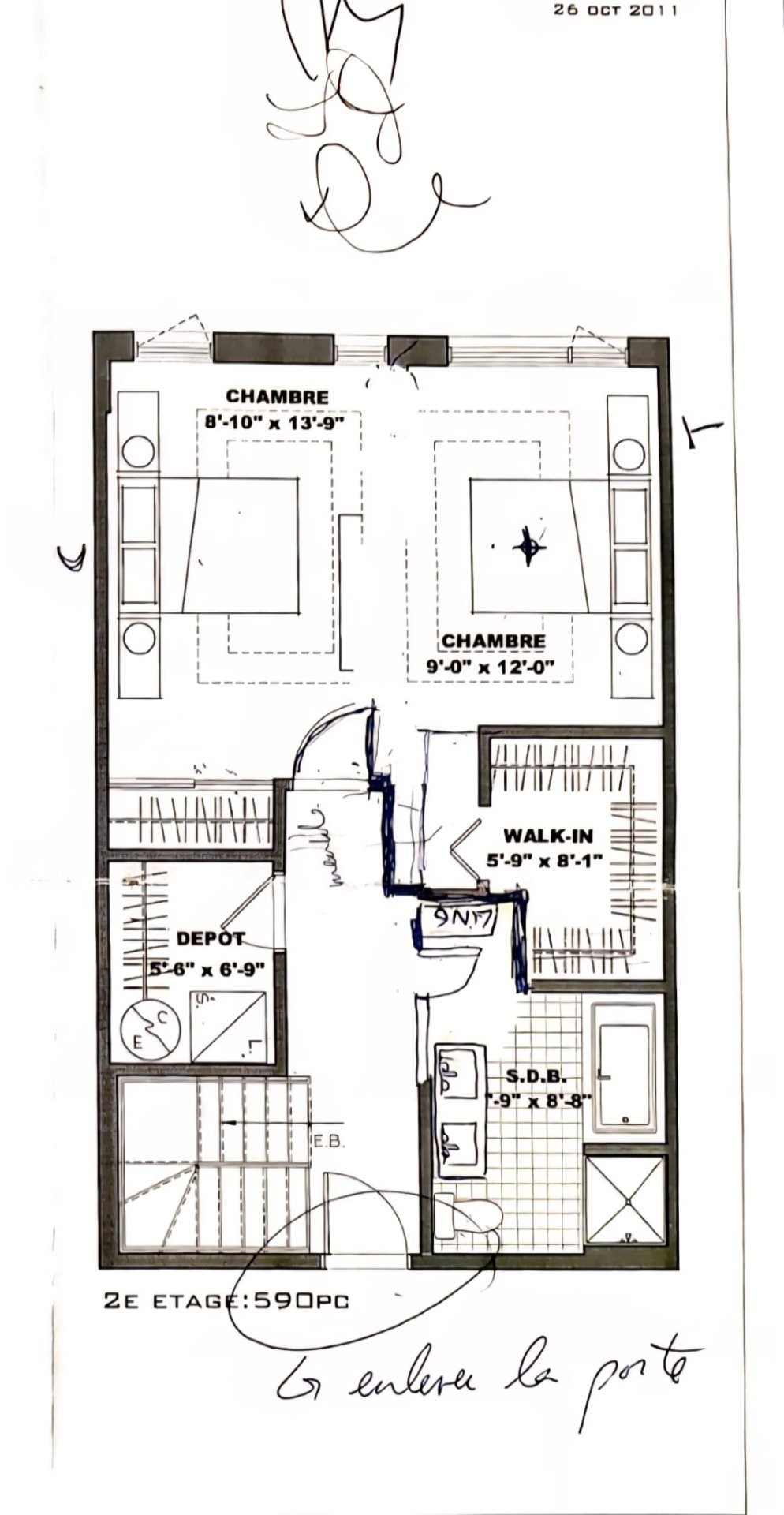
Condo lumineux sur 2 niveaux au coeur de Verdun. Anciennement un 4 ½, maintenant une grande chambre avec walk-in et mezzanine ouverte pouvant accueillir une 2e chambre ou un bureau. Hauts plafonds, terrasse privée, et accès à une terrasse commune sur le toit avec vues panoramiques sur la ville. Salle d'eau au rez-de-chaussée, salle de bain complète à l'étage, salle de lavage, garde-manger sous l'escalier, stationnement intérieur et rangement privé. Rue tranquille près du métro De l'Église, des cafés de Wellington, des parcs et du bord de l'eau. Une perle rare à Verdun !
Addenda
Bienvenue au 3995, rue Bannantyne, unité 111 -- un condo unique et soigneusement repensé sur deux étages, situé au coeur du dynamique quartier de Verdun. Anciennement un 4 ½, cette unité a été transformée en une vaste configuration à une chambre, avec un grand walk-in et une mezzanine polyvalente pouvant facilement accueillir une deuxième chambre ou un bureau à domicile.
Le rez-de-chaussée à aire ouverte se distingue par ses hauts plafonds, sa luminosité abondante et ses volumes généreux. Accédez à votre terrasse privée, idéale pour recevoir, jardiner ou simplement profiter des beaux jours. Les résidents bénéficient également d'une terrasse commune sur le toit, offrant une vue panoramique imprenable sur la ville -- un véritable atout pour vos soirées d'été.
La fonctionnalité est au rendez-vous grâce à plusieurs espaces de rangement bien pensés, dont un garde-manger intégré sous l'escalier, une salle de lavage indépendante, ainsi qu'une salle d'eau au rez-de-chaussée et une salle de bain complète à l'étage.
Un stationnement intérieur est inclus, accompagné d'un espace de rangement privé situé juste derrière la place de stationnement -- un atout rare et très recherché dans le secteur.
Située sur une rue paisible à quelques pas du métro De l'Église, cette propriété vous place à proximité de tous les attraits de Verdun : les cafés et boutiques de la rue Wellington, les parcs, les pistes cyclables, le bord de l'eau et une véritable vie de quartier.
Que vous soyez un professionnel à la recherche d'un espace de vie stylé, un couple désirant de la flexibilité, ou un investisseur avisé, cette propriété représente une occasion unique dans l'un des quartiers les plus convoités de Montréal.
Inclus dans la vente
Réfrigérateur, cuisinière, laveuse, sécheuse, lave-vaisselle, micro-ondes/ventilateur, support TV dans le salon, luminaires - volets en bois sur mesure
Emplacement
Calculatrice de Paiements
Détails des pièces
Pièce | Niveau | Dimensions | Revêtement | Description |
---|---|---|---|---|
Autre | Rez-de-chaussée | 3.5x7.5 P | Plancher flottant | |
Rangement | Rez-de-chaussée | 6.9x2.5 P | Plancher flottant | |
Salle d'eau | Rez-de-chaussée | 3.5x7.5 P | Céramique | |
Salle à manger | Rez-de-chaussée | 10.5x9.8 P | Plancher flottant | |
Cuisine | Rez-de-chaussée | 8.0x7.6 P | Plancher flottant | |
Salle familiale | Rez-de-chaussée | 15.3x17.8 P | Plancher flottant | |
Hall d'entrée | 2ième étage | 12.0x3.0 P | Plancher flottant | |
Salle de bain | 2ième étage | 7.2x10.0 P | Céramique | |
Salle de lavage | 2ième étage | 5.6x6.8 P | Céramique | |
Chambre à coucher principale | 2ième étage | 13.6x17.7 P | Plancher flottant | |
Autre | 2ième étage | 5.4x8.5 P | Plancher flottant |
Évaluation, taxes et autres frais
- Frais de condo $464 Par Mois
- Taxes Municipales $3,815
- Taxes Scolaires $477
- Évaluation municipale propriété $595,800
- Évaluation municipale terrain $90,500
- Évaluation municipale totale $686,300
- Année de l'évaluation 2024
Properties in the Region










151 Rue de la Rotonde, #1605
Découvrez un raffinement inégalé dans cette unité de coin au 16e étage du prestigieux Evolo X, un chef-d'oeuvre architectural au coeur de Po...
-
chambres
2
-
salles de bains
2
-
PC
958
-
prix
969 000.0 $










760 Ch. Marie-Le Ber, #715
LOFTS DE LA GRANDE ALLÉE - un trésor caché ! Situé au 7e étage, ce spacieux condo lumineux de 2 chambres, parfaitement agencé, offre un espa...
-
chambres
2
-
salles de bains
1
-
PC
1005
-
prix
529 000.0 $










618-620 Rue Woodland
Découvrez ce spacieux duplex jumelé idéalement situé au coeur de Verdun, l'un des quartiers les plus prisés et animés de Montréal. La propri...
-
chambres
2
-
salles de bains
1
-
prix
899 000.0 $






828 Rue Hickson
Découvrez une occasion d'investissement exceptionnelle au coeur de Verdun! Immeuble bien entretenu, situé dans un quartier dynamique et en p...
-
prix
1 475 000.0 $










442 Rue Moffat
À louer à Verdun : appartement spacieux de 3 chambres avec salon (pouvant servir de 4 chambre), salle à manger et cuisine fonctionnelle. Une...
-
chambres
3
-
salles de bains
1
-
PC
1250
-
prix
2 450.0 $ / M










199 Rue de la Rotonde, #2109
Bienvenue à Evolo 1 à l'Île des Soeurs. Ce magnifique condo d'une chambre avec boudoir offre une cuisine élégante avec comptoirs en quartz,...
-
chambres
1
-
salles de bains
1
-
PC
615
-
prix
449 000.0 $










199 Rue de la Rotonde, #709
Découvrez les Tours Evolo sur la prestigieuse Île-des-Soeurs, un cadre unique à quelques minutes du centre-ville. Ce condo élégant à aire ou...
-
chambres
1
-
salles de bains
1
-
PC
612
-
prix
499 000.0 $










1170-1172 Rue Manning
Duplex idéalement situé à Verdun.L'unité principale comprend deux chambres à coucher et une troisième au sous-sol entièrement aménagé. Accès...
-
chambres
3
-
salles de bains
1
-
prix
774 900.0 $