39 PHOTOS

Montréal (Ville-Marie) - Centris® No. 10130276

2600 Av. Pierre-Dupuy, #207

  • 2

    chambres
  • 1 + 1

    salles de bains
  • 1383

    PC
  • 749 000.0 $

    prix

Vivez dans l'histoire de l'architecture à Habitat '67, le chef-d'oeuvre visionnaire de Moshe Safdie. Cet appartement de deux chambres offre un espace de vie unique sur deux étages. Grand salon/salle à manger à aire ouverte avec d'immenses fenêtres qui inondent la maison de lumière naturelle, deux terrasses privées spacieuses avec une vue imprenable sur le fleuve Saint-Laurent, la silhouette du Vieux-Montréal et au-delà. Les plafonds vertigineux, les formes sculpturales en béton et les sons apaisants du fleuve créent une oasis de paix à quelques minutes du centre-ville. Découvrez le luxe moderniste dans l'un des immeubles résidentiels les plus

Addenda

Découvrez Habitat 67, le chef-d'oeuvre révolutionnaire de Moshe Safdie, né sous la forme d'un pavillon canadien audacieux pour l'Expo 67 et aujourd'hui considéré comme une icône mondiale de l'architecture moderniste. Il ne s'agit pas seulement d'une résidence, mais d'une sculpture vivante, d'un monument historique reconnu par l'UNESCO (classé par la ville de Montréal et le gouvernement du Québec) et de l'une adresses les plus exclusives du Canada.

Conçu comme une solution expérimentale à la vie urbaine à haute densité, Habitat 67 empile 354 modules préfabriqués en béton (chacun étant un cube massif d'environ 600 pieds carrés pesant 90 tonnes) pour former une structure pyramidale en gradins de 12 étages. Le résultat allie l'intimité et les commodités d'une maison de banlieue, des terrasses privées sur le toit, une lumière naturelle abondante, des espaces extérieurs semblables à des jardins, à l'énergie de la vie urbaine.

Chaque unité dispose d'au moins une terrasse privée (souvent plusieurs), d'une vue panoramique sur plusieurs côtés et d'une impression de flotter au-dessus du fleuve Saint-Laurent. Imaginez-vous en train de vous réveiller au lever du soleil sur le fleuve, de regarder les bateaux de croisière glisser devant le Vieux-Port ou de siroter un café en admirant la silhouette de Montréal et le mont Royal qui s'illuminent au crépuscule.

Les terrasses deviennent des extensions de votre espace de vie, parfaites pour les repas en plein air, le jardinage ou simplement pour vous imprégner des sons apaisants de l'eau et du brouhaha lointain de la ville depuis les intérieurs ouverts et les formes sculpturales en béton qui définissent l'élégance brutaliste. Au-delà de l'esthétique, Habitat offre une véritable exclusivité : un modèle de propriété en société en commandite des locataires depuis 1985 garantit la gouvernance communautaire, tandis que les équipements communs dans

Les terrasses deviennent des extensions de votre espace de vie, parfaites pour les repas en plein air, le jardinage ou simplement pour vous imprégner des sons apaisants de l'eau et du brouhaha lointain de la ville depuis les intérieurs ouverts et les formes sculpturales en béton qui définissent l'élégance brutaliste. Au-delà de l'esthétique, Habitat offre une véritable exclusivité : un modèle de propriété en société en commandite limitée depuis 1985 garantit la gouvernance communautaire, tandis que les équipements communs comprennent un parking sécurisé, des espaces de rangement, des passerelles piétonnes à différents niveaux et un accès par ascenseur. À quelques minutes seulement du centre-ville de Montréal, du Vieux-Port, des pistes cyclables et des centres culturels, vous bénéficiez de la commodité urbaine dans un cadre paisible et isolé, en pleine nature.

Habitat 67 transcende les tendances. Il a défié les conventions en 1967 et continue de le faire aujourd'hui : une vision utopique réalisée, où un design innovant, l'intimité, la lumière et des vues à

Lire la suite

Inclus dans la vente

2 réfrigérateurs, 2 congélateurs, plaque de cuisson électrique (à induction), four encastré, lave-vaisselle, lave-linge, sèche-linge, luminaires encastrés, auvent, miroirs de salle de bains.

Emplacement

Calculatrice de Paiements

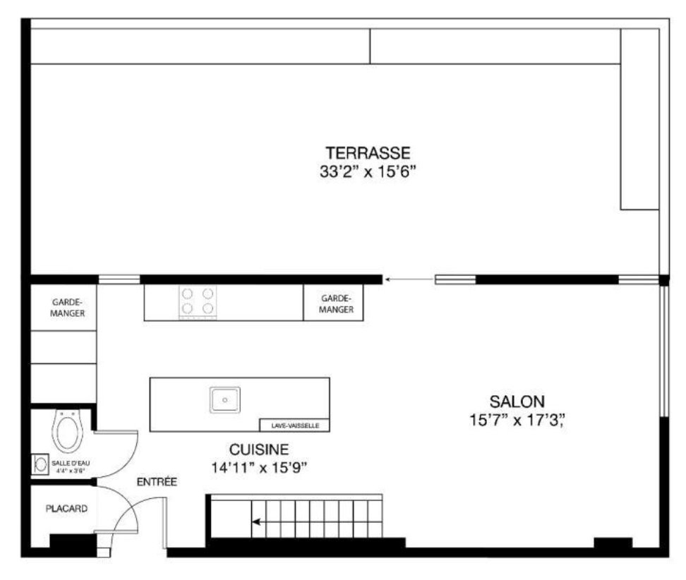
Détails des pièces

Pièce Niveau Dimensions Revêtement Description
Autre 3ième étage 16.9x15.5 P Bois
Salle de bain 3ième étage 10.4x7.6 P Céramique
Chambre à coucher 3ième étage 13.6x9.9 P Bois
Chambre à coucher principale 3ième étage 13.9x12.2 P Bois
Autre 2ième étage 33.2x15.6 P Bois
Salle à manger 2ième étage 15.7x8.7 P Bois
Salle d'eau 2ième étage 4.4x3.6 P Céramique
Salon 2ième étage 15.7x8.7 P Bois
Cuisine 2ième étage 14.11x15.9 P Plancher flottant

Évaluation, taxes et autres frais

  • Common Fees $28,128
  • Frais de condo $0 Par Mois

Calculatrice de Paiements

Contacter le courtier inscripteur

Yael Levy

Courtier immobilier résidentiel et commercial

yael@yaellevy.ca

514.944.4834

Properties in the Region

à louer
Montréal (Ville-Marie)

2180 Rue Ste-Catherine E., #34...

Occupation immédiate !* Ce condo est idéalement situé à l'Esplanade Cartier, à deux pas du centre-ville et à 5 minutes de marche du métro Pa...

  • chambres

    1

  • salles de bains

    1

  • PC

    534

  • prix

    1 600.0 $ / M

À vendre
Montréal (Ville-Marie)

1 Av. Viger O., #509

Vivez au coeur de Montréal ! Condo neuf d'une chambre à coucher disponible immédiatement. Peut aussi être loué à court terme. Le chauffage e...

  • chambres

    1

  • salles de bains

    1

  • prix

    420 000.0 $

à louer
Montréal (Ville-Marie)

1300 Boul. René-Lévesque O., #...

Condo haut de gamme, luxueux, 2 chambres, 2 salles de bain, unité de coin. Très lumineux et ENTIÈREMENT MEUBLÉ au milieu du centre-ville et...

  • chambres

    2

  • salles de bains

    2

  • PC

    976

  • prix

    3 900.0 $ / M

à louer
Montréal (Ville-Marie)

1205 Place Phillips, #2205

Studio neuf au 1 Square Phillips, au coeur du centre-ville de Montréal, offrant design moderne et emplacement exceptionnel. Fenêtres pleine...

  • salles de bains

    1

  • PC

    394

  • prix

    1 695.0 $ / M

à louer
Montréal (Ville-Marie)

1500 Boul. René-Lévesque O., #...

Bienvenue dans la quintessence de la vie urbaine à l'édifice QuinzeCent au centre-ville de Montréal. Condo 1 chambre au 20e étage, orienté n...

  • chambres

    1

  • salles de bains

    1

  • PC

    574

  • prix

    2 100.0 $ / M

à louer
Montréal (Ville-Marie)

3475 Rue de la Montagne, #1711

Finitions modernes et espace de vie lumineux et fonctionnel. L'immeuble offre des commodités recherchées, incluant une terrasse avec piscine...

  • chambres

    1

  • salles de bains

    1

  • prix

    1 512.0 $ / M

à louer
Montréal (Ville-Marie)

3475 Rue de la Montagne, #1515

Finitions modernes et espace de vie lumineux et fonctionnel. L'immeuble offre des commodités recherchées, incluant une terrasse avec piscine...

  • chambres

    1

  • salles de bains

    1

  • prix

    1 605.0 $ / M

À vendre
Montréal (Ville-Marie)

2600 Av. Pierre-Dupuy, #210

Située dans l'emblématique Habitat 67, cette rare résidence de un seul étage allie un héritage architectural au confort moderne et à un accè...

  • chambres

    2

  • salles de bains

    1 + 1

  • prix

    799 900.0 $

À vendre
Montréal (Ville-Marie)

1209 Rue St-Marc

Vaste maison de style victorien rénovée et agrandie en 2018 au coeur du village Shaughnessy à Montréal, à quelques pas de l'Université Conco...

  • chambres

    3 + 1

  • salles de bains

    2 + 2

  • PC

    2723

  • prix

    1 680 000.0 $