45 PHOTOS
Montréal (Saint-Léonard) - Centris® No. 14762427
7385-7389 Rue Montpetit
-
3
chambres -
2
salles de bains -
1 389 900.0 $
prix
Quadruplex bien entretenu offrant un excellent potentiel, situé dans le secteur recherché de Saint-Léonard. L'immeuble a bénéficié de plusieurs améliorations au fil des ans, assurant une tranquillité d'esprit aux futurs propriétaires. Toiture refaite en 2024 et unités soigneusement mises à jour. Localisation stratégique à proximité des écoles, parcs, commerces, transports en commun et axes routiers majeurs, facilitant les déplacements quotidiens. Secteur familial et dynamique, très apprécié pour sa qualité de vie. Opportunité idéale pour investisseurs ou propriétaires occupants souhaitant un immeuble solide dans un quartier en demande.
Addenda
* Quadruplex solide et soigneusement entretenu offrant un fort potentiel de valorisation
* Améliorations significatives effectuées au fil des années, assurant une propriété bien maintenue
* Certaines unités modernisées, optimisant l'attrait locatif et la qualité de vie des occupants
* Opportunité stratégique pour investisseurs avisés ou propriétaire occupant recherchant stabilité et croissance
* Immeuble situé dans l'un des secteurs les plus établis et recherchés de Saint-Léonard
Emplacement privilégié :
* À proximité des écoles réputées, garderies et services essentiels
* Accès rapide aux parcs, pistes cyclables et installations sportives
* Commerces, épiceries, cafés et restaurants accessibles en quelques minutes
* Excellente desserte par le transport en commun
* Accès facile aux grands axes routiers facilitant les déplacements vers le centre-ville et les environs
* Secteur familial reconnu pour sa qualité de vie et sa forte demande locative
* CETTE VENTE EST FAITE SANS GARANTIE LÉGALE DE QUALITÉ, AUX RISQUES ET PÉRILS DE L'ACHETEUR.
Inclus dans la vente
Luminaires, stores, lave-vaisselle dans l'unité 7385.
Exclus de la vente
Biens personnels des locataires, stores et rideaux des locataires, ainsi que leurs appareils électroménagers.
Emplacement
Calculatrice de Paiements
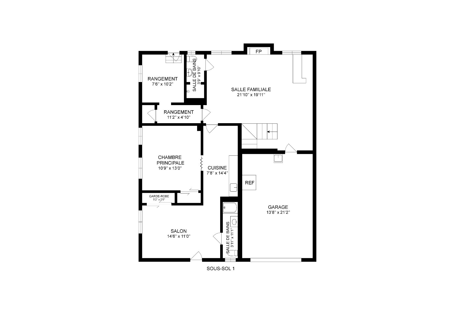
Détails des pièces
| Pièce | Niveau | Dimensions | Revêtement | Description |
|---|---|---|---|---|
| Rangement | Sous-sol | 11.2x4.10 P | Béton | |
| Cave/ chambre froide | Sous-sol | 7.6x10.2 P | Béton | |
| Salle de bain | Sous-sol | 3.9x9.10 P | Céramique | |
| Salle familiale | Sous-sol | 21.10x19.11 P | Céramique | |
| Chambre à coucher | Rez-de-chaussée | 11.0x11.4 P | Bois | |
| Salle de lavage | Rez-de-chaussée | 11.1x5.5 P | Céramique | |
| Salle de bain | Rez-de-chaussée | 8.5x10.0 P | Céramique | |
| Chambre à coucher | Rez-de-chaussée | 11.2x12.10 P | Bois | |
| Chambre à coucher principale | Rez-de-chaussée | 11.6x15.7 P | Bois | |
| Cuisine | Rez-de-chaussée | 11.11x10.7 P | Céramique | |
| Salle à manger | Rez-de-chaussée | 8.3x11.10 P | Céramique | |
| Salon | Rez-de-chaussée | 13.10x16.10 P | Bois | |
| Autre | Rez-de-chaussée | 13.4x19.4 P | Tuiles | |
| Autre | Rez-de-chaussée | 4.1x5.10 P | Céramique |
| Pièce | Niveau | Dimensions | Revêtement | Description |
|---|---|---|---|---|
| Salle de bain | 2ième étage | 6.11x4.11 P | Céramique | |
| Chambre à coucher | 2ième étage | 8.10x8.9 P | Bois | |
| Autre | 2ième étage | 11.6x11.6 P | Bois | |
| Cuisine | 2ième étage | 9.4x16.2 P | Céramique | |
| Salon | 2ième étage | 18.4x9.8 P | Bois | |
| Autre | 2ième étage | 4.5x15.2 P | Bois |
| Pièce | Niveau | Dimensions | Revêtement | Description |
|---|---|---|---|---|
| Salle de bain | 2ième étage | 4.5x6.11 P | Céramique | |
| Chambre à coucher | 2ième étage | 8.0x10.2 P | Bois | |
| Chambre à coucher principale | 2ième étage | 11.1x8.8 P | Bois | |
| Cuisine | 2ième étage | 14.11x8.7 P | Céramique | |
| Salon | 2ième étage | 10.11x12.10 P | Bois |
| Pièce | Niveau | Dimensions | Revêtement | Description |
|---|---|---|---|---|
| Salle de bain | Autre | 3.11x11.1 P | Céramique | |
| Chambre à coucher | Autre | 10.9x13.0 P | Céramique | |
| Salon | Autre | 14.6x11.0 P | Céramique | |
| Cuisine | Autre | 7.8x14.4 P | Céramique |
Évaluation, taxes et autres frais
- Taxes Municipales $6,060
- Taxes Scolaires $694
- Évaluation municipale propriété $560,800
- Évaluation municipale terrain $406,900
- Évaluation municipale totale $967,700
- Année de l'évaluation 2026
Particularités du bâtiment et intérieur de la propriété
- Appareils en location Chauffe-eau
- Armoires Bois
- Mode de chauffage Air soufflé, Eau chaude, Plinthes à convection, Plinthes électriques
- Approvisionnement en eau Municipalité
- Énergie pour le chauffage Électricité
- Équipement disponible Thermopompe murale
- Fenêtres Aluminium
- Fondation Béton coulé
- Foyers-poêles Foyer au bois
- Garage Attaché, Chauffé, Intégré, Simple largeur
- Proximité Autoroute/Voie rapide, Parc-espace vert, École primaire, École secondaire, Transport en commun
- Sous-sol 6 pieds et plus, Entrée indépendante, Totalement aménagé
- Stationnement Extérieur, Au garage
- Système d'égouts Municipal
- Aménagement du terrain Cour clôturé, Paysager
- Type de fenêtre Coulissante
- Toiture Membrane élastomère
- Zonage Résidentiel
Properties in the Region
6300 Rue Jarry E., #504
6300 Rue Jarry E #504 est une résidence où le raffinement se fait immédiatement sentir. Dès l'entrée, environ 1 300 pieds carrés se déploie...
-
chambres
2
-
salles de bains
1
-
PC
1310
-
prix
539 000.0 $
8170A Rue de Chamilly
Bachelor avec TOUT inclus : électricité, Internet, eau chaude et électroménagers (réfrigérateur, cuisinière, laveuse et sécheuse). Idéalemen...
-
salles de bains
1
-
prix
1 500.0 $ / M
6300 Rue Jarry E., #501
Superbe unité de coin baignée de lumière avec une orientation exceptionnelle et des couchers de soleil spectaculaires! Condo de 3 chambres i...
-
chambres
3
-
salles de bains
2
-
PC
1239
-
prix
529 000.0 $
8510 Rue Jean-Nicolet, #502
Condo moderne et spacieux à louer dans le prestigieux projet Città à Saint-Léonard. Inclus : électroménagers, climatisation, balcon privé, e...
-
chambres
1
-
salles de bains
1
-
PC
511.28
-
prix
369 000.0 $